Nhà cấp 4 gác lửng đang ngày càng được nhiều gia đình săn đón bởi các công năng tuyệt vời mà nó mang lại. Không chỉ đảm bảo yếu tố về thẩm mỹ kiểu nhà này vẫn có thể đáp ứng những công năng như nhà 2 tầng, với chi phí xây dựng tiết kiệm hơn. Hôm nay 9X DESIGN xin giới thiệu các mẫu nhà cấp 4 gác lửng mặt tiền 5m tiện nghi để bạn đọc tiện tham khảo cho ngôi nhà sắp tới của gia đình mình.
Mẫu nhà cấp 4 gác lửng mặt tiền 5m x 15m 3 phòng ngủ
Mặt tiền mẫu nhà cấp 4 gác lửng mặt tiền 5m có ngoại thất sơn màu trắng đơn giản nhưng sang trọng. Điểm nhấn của mẫu nhà chính là thiết kế ấn tượng của các trụ cột vuông chính trước sảnh chính, tạo sự khỏe khoắn và vững chắc. Ngôi nhà còn khá bắt mắt bởi kiểu mái thái lợp ngói ghi xám cùng màu sơn tường trắng tinh tế, tạo nên một tổng thể hài hòa, ưa nhìn.

Mặt tiền nhà cấp 4 ngang 5m có gác lửng
Không gian sử dụng của tầng 1 mẫu nhà đẹp có 1 phòng khách, 1 phòng ngủ, 1 phòng bếp + ăn và 1 nhà WC. ầu thang kết hợp với thông tầng giếng trời lấy ánh sáng từ trên mái xuống thiết kế áp sát tường lệch tối ưu không gian. Nội thất phòng ngủ master được thiết kế tiện nghi có tủ kệ quần áo tivi đầy đủ.

Mặt bằng công năng tầng 1
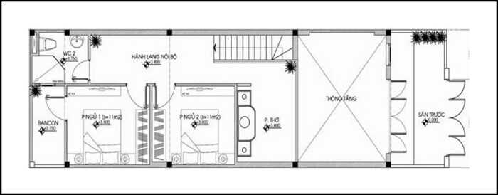
Tầng 2 gác lửng thiết kế 1 phòng thờ, 2 phòng ngủ và 1 phòng vệ sinh chung phía sau và khoảng thông tầng phía trước. Trong đó phòng ngủ phía sau có ban công hóng gió mát. Với cách bố trí công năng sử dụng khoa học và hiện đại giúp chủ đầu tư tiết kiệm diện tích đất xây dựng, các không gian sinh hoạt không chồng chéo lên nhau gây bí bách cho ngôi nhà.

Mặt bằng công năng gác lửng
Mẫu nhà cấp 4 gác lửng mặt tiền 5m x 16m đơn giản thoáng rộng
Mẫu nhà cấp 4 gác lửng mặt tiền 5m được thiết kế đơn giản, nhưng có không gian sống thoáng rộng. Ngoại thất ngôi nhà được phối hòa giữa các màu sắc trắng, xanh và nâu đỏ tạo ấn tượng giúp thu hút mọi ánh nhìn. Những đường gờ chỉ chạy ngang kết hợp với chi tiết tròn trên phần mái tạo sự nổi bật cho công trình. Hệ cửa kính viền nhôm đen cho không gian luôn ngập tràn ánh sáng thiên nhiên trở nên lung linh hơn. Chân tường được ốp gạch thẻ màu xám để tăng tuổi thọ và nét thẩm mỹ cho công trình. Tại sảnh chính và bậc tam cấp cùng chân trụ cột được lót gạch vân mây đen cao cấp tăng sự sang trọng cho mặt tiền.

Phối cảnh mẫu nhà cấp 4 có gác lửng 5×16 đẹp
Tầng 1 ngôi nhà được bố trí phòng khách ngay tại cửa chính để đón nhận được nhiều ánh sáng và thông thoáng. Tiếp đó là phòng bếp – ăn được bố trí cạnh bên cầu thang và được phân cách với phòng khách bằng vách ngăn. Phòng ngủ yên tĩnh được đặt tách biệt ở cuối nhà. Nhằm đáp ứng nhu cầu sinh hoạt của các thành viên trong nhà, một WC được thiết kế ở phía cuối hành lang, cạnh bên sân sau thoáng mát.

Mặt bằng công năng tầng 1
Tầng lửng ngôi nhà có khoảng thông tầng để không khí được lưu thông tốt hơn. Khu vực đầu tiên của tầng lửng là thiết kế phòng thờ đảm bảo yếu phong thủy và sự trang nghiêm cần có. Hai phòng ngủ cho con được thiết kế phía trong với phòng ngủ sau có ban công mát mẻ, phong cách theo sở thích của chủ nhân căn phòng. Cuối hành lang được sắp xếp một nhà vệ sinh chung dễ dàng cho việc sử dụng.

Mặt bằng công năng gác lửng
Mẫu nhà cấp 4 gác lửng mặt tiền 5m x 16,5m vuông vắn
Thoạt nhìn, mẫu nhà cấp 4 gác lửng mặt tiền 5m có vẻ ngoài khá vuông vắn và độc đáo. Mặt tiền ngôi nhà được trang trí với tông màu trầm của đá ốp kết hợp màu sơn trắng tạo nên sự sang trọng, tinh tế. Hệ thống cửa kính lớn được bố trí hợp lý giúp ngôi nhà có được ánh sáng tự nhiên và không khí thoáng mát. Thiết kế mái xếp chồng 2 lớp tạo điểm nhấn cho ngôi nhà cũng như tránh ứ đọng nước trong mùa mưa.

Mẫu thiết kế nhà cấp 4 phong cách hiện đại
Tầng 1 gồm phòng khách, phòng trà, phòng ngủ, phòng ăn + bếp, phòng wc, sân trước, sân sau.. Không gian các phòng được bố trí thông minh, khoa học, dung hòa được giữa cảnh quan thiên nhiên với công năng để tận dụng không khí thoáng đãng, ánh sáng tự nhiên cho ngôi nhà. Phòng khách được thiết kế khá rộng với tầm nhìn ra sân vườn mang đến cảm giác thư thái. Phòng ngủ nhìn ra sân sau mang đến sự thư giãn và hưởng thụ cho gia chủ.

Mặt bằng công năng tầng 1
Tầng lửng ngôi nhà cấp 4 có gác lửng, mặt tiền 5m mái thái đẹp được bố trí đơn giản gồm phòng thờ kết hợp với sinh hoạt chung và 1 phòng ngủ có nhà WC riêng phù hợp sở thích của chủ căn phòng.

Mặt bằng công năng gác lửng
Mẫu nhà cấp 4 gác lửng mặt tiền 5x20m có hàng rào đẹp
Mặt tiền mẫu nhà cấp 4 gác lửng mặt tiền 5m được thiết kế vuông vắn, xinh xắn với tường rào, sơn tường màu trắng nhẹ nhàng kết hợp với phần mái thái làm tôn lên nét đẹp hiện đại và tinh tế cho căn nhà. Toàn bộ kiến trúc của ngôi nhà đẹp được thiết kế theo phong cách hiện đai, không gian mở để gần gũi với thiên nhiên hơn. Thiết kế phần mái Thái có độ dốc vừa phải giúp ngăn nước mưa bị đóng lại trên mái. Tường rào bao quanh nhà được xây dựng chắc chắn với sơn màu trắng giúp cho ngoại cảnh của căn nhà trở nên xinh xắn hơn.

Mẫu nhà cấp 4 gác lửng 5x20m được thiết kế theo phong cách hiện đại mái thái
Tại tầng 1, phòng khách được đặt ngay cửa đi vào có diện tích tương đối rộng rãi nên tận hưởng trọn vẹn nguồn ánh sáng tự nhiên. Qua phòng khách sẽ là phòng ngủ lớn được trang bị phòng thay đồ tiện lợi và nhà vệ sinh riêng. Mẫu nhà cấp 4 này còn được thiết kế tới 2 nhà vệ sinh rộng rãi, đảm bảo sự sinh hoạt của toàn bộ thành viên trong gia đình. Phòng bếp và phòng ăn được thiết kế liền kề nhau để tiết kiệm diện tích cho toàn bộ ngôi nhà.

Mặt bằng công năng tầng 1
Tầng lửng bao gồm sân phơi đồ, đồng thời cũng là ban công rộng rãi. Kèm theo đó là một phòng ngủ nhỏ bên trong. Bên ngoài hướng ra cầu thang là phòng thờ. Căn phòng thờ được xếp ngay ngắn và chính giữa gác lửng thể hiện sự trang nghiêm và trang trọng.

Mặt bằng công năng gác lửng
Mẫu nhà cấp 4 gác lửng mặt tiền 5x24m mái thái đỏ tiện nghi
Mẫu nhà cấp 4 gác lửng mặt tiền 5m này nổi bật với thiết kế mái ngói đỏ tươi thân thuộc giúp tổng thể kiến trúc trở nên sắc nét. Thay vì mái đối xứng hai bên đơn giản thì kiến trúc sư đã cách điệu thiết kế mái giật cấp đua ra, tạo thêm nét thẩm mỹ độc đáo cho ngôi nhà.
Hệ cửa kính khung nhôm hiện đại với chất liệu kính cường lực cao cấp đảm bảo sự an toàn cho đời sống sinh hoạt của gia chủ. Đồng thời giúp ánh sáng tự nhiên luôn tràn ngập không gian nội thất. Mỗi khung cửa sổ đều thiết kế mái hiên lợp mái thái cầu kỳ, đây là một nét chấm phá tô điểm cho mẫu thiết kế thêm đẹp mắt. Màu be trắng trung tính làm chủ đạo cho thiết kế, kết hợp hoàn hảo với thiết kế mái ngói đỏ. Để mang không gian xanh hòa quyện với không gian sinh hoạt, các bồn hoa trước khuôn viên nhà.

Mặt tiền thiết kế đơn giản nhưng kiên cố và khoa học
Tại tầng 1, từ sảnh chính bước vào là phòng khách rộng rãi được thiết kế sang trọng. Đi tiếp là khu vực cầu thang được bố trí bàn trà đọc sách ngay dưới chân thang, tận dụng được nguồn sáng khá hợp lý. Hai phòng ngủ tiện nghi được bồ trí đặt cạnh nhau ở bên trong. Phòng bếp kết hợp phòng ăn tiện nghi ở cuối nhà và có sảnh phụ ra ngoài, phòng vệ sinh chung bố trí cạnh phòng ăn và phòng ngủ rất tiện lợi cho sinh hoạt chung.
Tầng lửng chủ yếu thiết kế làm phòng ngủ master với phòng vệ sinh khép kín. Phòng ngủ này khá rộng, có phòng thay đồ và phòng làm việc. Phòng thờ bố trí gần cầu thang đi lên, dọc hành lang dẫn ra sân phơi cho gia đình.

Mặt bằng công năng các tầng
Hi vọng các mẫu nhà cấp 4 gác lửng mặt tiền 5m chúng tôi cập nhật trên kèm bản vẽ kích thước không gian phối cảnh kiến trúc sẽ là những gợi ý thú vị để gia đình bạn tham khảo thêm. Nếu bạn yêu thích những mẫu nhà này hãy liên hệ ngay cho 9X DESIGN, đội ngũ kiến trúc sư của chúng tôi sẽ tư vấn và hỗ trợ bạn nhiệt tình nhất.





