Với phối cảnh linh hoạt và đơn giản, mẫu nhà ống 2 tầng 6x18m đem đến cho gia chủ một không gian sống tiện nghi và khoa học. Nếu bạn và gia đình đang có ý định tìm hiểu thêm về mẫu thiết kế nhà 2 tầng này, đừng bỏ lỡ bài viết dưới đây của 9X DESIGN nhé!
Mẫu nhà ống 2 tầng 6×18 chữ L mái thái khỏe khoắn
Mẫu nhà ống 2 tầng 6x18m có thiết kế hình chữ L giúp cho việc lấy sáng và gió tự nhiên một cách tốt hơn. Việc mở thêm một cửa phụ tại vị trí bên hông nhà cũng giúp các thành viên thuận tiện hơn trong việc di chuyển. Mái thái cũng là một trong những loại hình được xây dựng khá phổ biến tại nước ta, sở hữu những ưu điểm như giúp thoát nước tốt hơn, hạn chế tình trạng thấm, dột nhà.

Mặt tiền là sự kết hợp giữa khung nhôm kính cường lực, gạch ốp mặt tiền, không gian cây xanh tự nhiên để tạo các điểm nhấn ấn tượng.
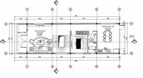
Tại vị trí sảnh trước đi vào là phòng khách, thoáng đãng và mát mẻ nhờ ánh sáng từ bên ngoài vào trong nhà thông qua lớp cửa kính trong suốt. Cạnh đó là bàn ăn đối diện cầu thang, phía dưới chân cầu thang được trang trí thêm bởi hệ tiểu cảnh bắt mắt. Kế đến là phòng bếp rộng rãi, nhằm ngăn cách và giảm bớt mùi thức ăn lan sang những khu vực khác. Đối diện là một phòng ngủ đơn giản. Một nhà vệ sinh chung ở cuối nhà đảm bảo nhu cầu sử dụng của các thành viên trong gia đình.

Mặt bằng tầng 1
Tại vị trí tầng 2, bên phải cầu thang là hai phòng ngủ được sắp xếp cạnh nhau. Riêng phòng ngủ master có sẵn toilet trong phòng. Đối diện cầu thang là một phòng vệ sinh chung. Cạnh đó là nhà kho, là nơi để đồ của gia đình gia chủ. Khu vực thờ nằm gần ban công, nhằm giảm bớt cảm giác tù túng và ngột ngạt bên trong.

Mặt bằng tầng 2
Mẫu nhà ống 2 tầng 6×18 màu sắc tươi sáng
Với gam mau trắng làm chủ đạo kết hợp với mái bằng cùng với trụ cột vững chắc tạo nên vẻ bề thế cho mẫu nhà đẹp. Thêm vào nữa là cửa sổ và cửa chính được làm bằng khung nhôm kính khiến ngôi nhà sang trọng hơn. Đồng thời mẫu nhà ống 2 tầng 6x18m luôn sáng và thoáng nhờ đón nhận được ánh sáng tự nhiên.

Nhà ống 2 tầng 6x18m mang phong cách hiện đại , thiết kế đơn giản hóa
Phía trước nhà chừa lại một khoảng làm tiền sảnh để vào phòng khách. Bên trong là cầu thang ngăn cách phòng khách với phòng bếp. 1 phòng ngủ được bộ trí cạnh cầu thang. Phía sau nhà được thiết kế phòng ngủ tiện nghi.

Mặt bằng tầng 1
Tầng 2 được bố trí 2 phòng ngủ, 1 phòng sinh hoạt chung và 1 phòng thờ tất cả các không gian đều được bố trí rất hợp lý để mọi người trong gia đình đều có không gian riêng để nghỉ ngơi.

Mặt bằng tầng 2
Mẫu nhà ống 2 tầng 6x18m mái bằng 2 phòng ngủ
Kết cấu kiến trúc của mẫu nhà ống 2 tầng 6x18m sau mang dáng vẻ hiện đại, khỏe khoắn kết hợp hài hòa với màu sơn trắng chủ đạo tạo nên khối kiến trúc hoàn hảo. Hệ thống cửa kính cường lực khung nhôm được thiết kế khoa học và hợp lý tạo được cảm giác thoải mái. Đặc biệt, mặt tiền nhỏ gọn kết hợp cùng khoảng ban công vừa phải giúp công trình trở nên mát mẻ, thoáng đãng hơn.

Thiết kế nhà ống 2 tầng khá ấn tượng với mái bằng hiện đại, giúp biệt thự trở nên thông thoáng
Ở khu vực tầng 1, phòng khách đầy đủ tiện nghi được đặt ngay cạnh cửa chính để có thể đón nhận được nhiều ánh sáng tự nhiên. Tiếp đến là 1 phòng ngủ được bố trí gần với cầu thang thông tầng. Bên ngoài là 1 nhà vệ sinh chung mang tới sự tiện nghi trong quá trình sinh hoạt. Cuối cùng là khu vực phòng bếp kết hợp phòng ăn.

Mặt bằng tầng 1
Tầng 2 được bố trí với 1 phòng thờ trang nghiêm cùng với 2 phòng ngủ thông thoáng và rộng rãi. Phòng vệ sinh chung được bố trí ở giữa thuận tiện trong sinh hoạt. Hành lang thiết kế rộng giúp không khí được lưu thông tốt hơn.

Mặt bằng tầng 2
Mẫu nhà ống 2 tầng 6x18m 4 phòng ngủ năng động
Mặt tiền mẫu nhà ống đẹp kích thước 6x18m lấy tông màu đen và trắng làm chủ đạo. Nền sơn phía bên trong màu trắng cộng thêm sự phối hợp của hệ thống cửa làm nổi bật lên lớp sơn nâu cùng mảng tường ốp đá granite nâu. Bên cạnh đó còn có sự phối hợp của màu đá granite xám và điểm tô một mảng tường ốp gạch làm tổng thể bên ngoài có điểm nhấn. Lan can ban công được sử dụng là lan can kính cùng làm giàn cây leo và chậu hoa treo nổi sắc xanh của cây leo mang lại sức sống xanh cho mặt tiền căn nhà.

Mẫu nhà phố 2 tầng thiết kế hình khối hài hòa, tinh tế tạo thiện cảm trong ánh nhìn đầu tiên của nhiều người.
Mặt bằng công năng tầng 1 gồm: phòng ăn, nơi để xe, khu bếp và phòng ăn, vệ sinh và phòng ngủ. Phòng ngủ nhỏ tiện nghi dành riêng cho ông bà lớn tuổi. Phía sau còn có sân phơi nhưng vẫn lấy được nắng và gió.

Mặt bằng tầng 1
Không gian tầng 2 được bố trí với 1 phòng thờ trang nghiêm cùng với 3 phòng ngủ thông thoáng và rộng rãi, ở giữa 2 phòng ngủ là 1 nhà vệ sinh chung.

Mặt bằng tầng 2
Mẫu nhà ống 2 tầng 6x18m nhẹ nhàng
Mẫu nhà ống 2 tầng 6x18m này mang nét đẹp khỏe khoắn gây ấn tượng với người nhìn. Có được điều đó là nhờ vào hình khối đơn giản. Bên cạnh đó Kiến trúc sư sử dụng tone màu nhấn tinh tế đã góp phần tô vẽ ngôi nhà. Ở mẫu nhà ống 2 tầng đẹp này các kiến trúc sư đã thiết kế hệ thống cửa với diện tích khá rộng rãi, vật liệu kính cường lực khung nhôm cũng được sử dụng để đưa ánh sáng tự nhiên cùng vẻ đẹp của thiên nhiên hòa trộn vào cuộc sống của gia đình.

Gây ấn tượng từ cái nhìn đầu tiên với thiết kế mái với những đường xẻ độc đáo, căn hộ được thiết kế theo phong cách hiện đại
Mặt bằng công năng tầng 1 bao gồm: phòng khách, bếp, phòng ăn, nhà vệ sinh, 2 phòng ngủ. Phòng khách phía bên ngoài tiếp giáp với mặt đường, có ban công và cửa sổ để đón ánh sáng trực tiếp thông thoáng cho căn phòng. Bếp tách biệt ở phía bên trong. 2 phòng ngủ dùng chung nhà vệ sinh đặt phía cuối của ngôi nhà.

Mặt bằng tầng 1
Mặt bằng công năng tầng 2 của ngôi nhà gồm: phòng ngủ 4, phòng sinh hoạt chung, phòng thể dục thể thao, sân thượng. Phòng ngủ đặt phía cuối tầng và có nhà vệ sinh riêng. Không gian sinh hoạt chung rất lớn, có thể bố trí một bên là phòng sinh hoạt chung một bên là phòng thờ. Phòng tập thể dục thể thao riêng ở cạnh sân thượng lớn có thể trồng rau trồng hoa bày tiểu cảnh một cách thoải mái.

Mặt bằng tầng 2
Trên đây là mẫu nhà ống 2 tầng 6x18m mang phong cách kiến trúc hiện đại mà chúng tôi muốn giới thiệu đến bạn đọc. Hy vọng đây sẽ là một tư liệu tham khảo hữu ích dành cho các chủ đầu tư trong việc tìm và lựa chọn mẫu nhà trong tương lai.





