Thiết kế nhà ống 3 tầng 3x15m hiện đang là một trong những xu hướng mới trong kiến trúc đô thị hiện đại. Vì khi diện tích đất ngày càng bị bó hẹp cùng nhu cầu có một không gian riêng biệt, thì những ngôi nhà như thế này ngày càng được quan tâm. Tuy nhiên, để thiết kế được mẫu nhà có mặt tiền hẹp vừa đáp ứng được giá trị thẩm mỹ cao vừa đảm bảo công năng sử dụng tối ưu không đơn giản.
Song, bạn đừng lo lắng, hãy cùng 9X DESIGN tham khảo những giải pháp thiết kế hữu ích trong bài viết dưới đây, để có thể sở hữu không gian mặt tiền dù khiêm tốn cũng trở nên thông thoáng, tiện nghi và sang trọng.
Gợi ý giải pháp thiết kế nhà ống 3 tầng 3x15m mặt tiền hẹp nổi bật hơn
Nhà ống 3 tầng mặt tiền hẹp thường được xây dựng với kích thước mặt tiền hạn chế, nhỏ và hẹp hơn so với chiều sâu. Cụ thể, những ngôi nhà có kích thước mặt tiền nhỏ hơn 3.5m thì gọi là hẹp, chẳng hạn như thiết kế nhà ống 3 tầng 3x15m.
Mặt tiền vốn là yếu tố đầu tiên phản ánh tính thẩm mỹ của toàn bộ ngôi nhà. Tuy nhiên, mặt tiền nhà hẹp đòi hỏi sự tinh tế và khéo léo gấρ nhiều lần so với những ngôi nhà có mặt tiền rộng. Trước vấn đề này, các kiến trúc sư đã liên tục tìm tòi và sáng tạo những giải pháp thiết kế hiệu quả tối ưu nhất. Trong đó, xu hướng thiết kế nhà ống mặt tiền hẹp hiện đại hướng đến sự đơn giản nhưng thông thoáng rất được ưa chuộng. Bên cạnh đó, còn có nhiều giải pháp hữu ích khác mà bạn có thể tham khảo ngay sau đây.
Thiết kế nhà ống 3 tầng 3x15m theo phong cách hiện đại
Thực tế, kiến trúc cổ điển, tân cổ điển thường đề cao chi tiết, sự cầu kỳ và công phu trong thiết kế nên cần những khoảng không gian lớn, vừa phải để có dịp được phô bày. Do đó, những phong cách này sẽ không thích hợp cho những công trình, những thiết kế nhà mặt tiền hẹp, hoặc có diện tích nhỏ.

Vì thế, phong cách hiện đại sẽ là “chân ái” của những mẫu nhà có mặt tiền nhỏ hẹp. Lối kiên trúc này sẽ tập trung vào hình khối, nhấn mạnh vào các mảng miếng, hình học thẳng, phẳng….nên phù hợp với những ngôi nhà có kích thước mặt tiền hạn chế. Đồng thời, thiết kế này cũng tạo giúp mở rộng diện tích sử dụng cho công trình.
Tạo ra những khoảng không gian xanh gần gũi với thiên nhiên
Một ý tưởng tuyệt vời khác cho nhà phố mặt tiền hẹp là tạo ra những khoảng không gian xanh tươi mát. Đây cũng là xu hướng thiết kế nhà được nhiều gia chủ quan tâm lựa chọn. Không gian xanh không chỉ tạo nên sự thoải mái, dễ chịu mà còn giúp nâng tầm thiết kế và bố cục công năng kiến trúc của công trình. Các không gian xanh còn được tận dụng ở ban công, hoặc các mảng tường ngoài có thể dùng để trồng cây, giúp cho mặt tiền của ngôi nhà có thêm điểm nhấn, và thể hiện được sự mới mẻ, thoải mái khi thiết kế.
Sử dụng vật liệu kính tạo độ mở cho không gian
Vật liệu kính ngày càng được sử dụng phổ biến trong việc trang trí ngoại thất, nhất là với những thiết kế nhà phố, nhà ống. Không chỉ được áp dụng trên những ngôi nhà mang phong cách hiện đại, mà ngay cả ở những mẫu thiết kế nhà tân cổ điển, cổ điển… vật liệu này cũng rất phổ biến.
Với những mẫu nhà mặt tiền hẹp như nhà ống 3 tầng 3x15m thì kính chính là cứu cánh, mang đến hiệu quả vô cùng khi giúp xóa tan đi cảm giác chật chội. Bạn có thể tận dụng tối đa ưu điểm của vật liệu kính tạo độ mở cho không gian ngôi nhà (kính làm vách ngăn, cửa, cầu thang….).
Tham khảo những mẫu thiết kế nhà ống 3 tầng 3x15m đẹp hiện đại
Nếu đang sở hữu khu đất nhỏ, hạn chế mặt tiền và cần tìm kiếm phương án thiết kế nhà ống phù hợp đảm bảo về mặt thẩm mỹ, công năng, phong thủy và phù hợp với khả năng tài chính, bạn hãy tham khảo ngay những mẫu thiết kế nhà ống 3 tầng 3x15m dưới đây của chúng tôi.
Mẫu nhà 1: Nhà ống 3 tầng 3x15m mái thái
Những ngôi nhà ống mái thái luôn ưu tiên mặt tiền rộng thoáng. Tuy nhiên với sự khéo léo, các kiến trúc sư vẫn có thể tạo nên những mẫu nhà mái thái trên những ngôi nhà có mặt tiền hẹp. Mẫu thiết kế nhà ống 3 tầng 3x15m chính là ví dụ như thế khi sở hữu hệ mái thái ở tầng 2, và lên tầng 3 giật lùi vào trong, kết hợp với lối kiến trúc hiện đại đan xen. Hệ mái này đã mang tới nét kiến trúc độc đáo cho thiết kế nhà ống. Ngoài ra, nổi bật ở mặt tiền chính là hệ thống cổng kín đáo, trang trí mái ngói phụ, góp phần tô điểm cho công trình thêm phần đẹp mắt.

Mặt tiền phối cảnh ngôi nhà ống mái thái đẹp
Công năng ở tầng 1 bao gồm những khu vực chính như phòng khách, bếp, vệ sinh, phòng ngủ. Ở đây, các kiến trúc sư đã sắp xếp không gian khéo léo, để phù hợp với việc sinh hoạt của các thành viên. Phòng khách rộng và thoáng mát, kế tiếp là khu vực dành riêng cho bếp. Nhà vệ sinh chung được sắp xếp giữa các khu vực chức năng cần thiết, để phù hợp với sự di chuyển sinh hoạt trong nhà. Ngoài ra còn có một phòng ngủ dành riêng cho ông bà để hạn chế ông bà không phải leo trèo, giúp thuận tiện đi lại.
Tầng 2 là khu vực dành riêng cho việc nghỉ ngơi của bố mẹ và các con. Cả tầng dùng chung nhà vệ sinh ở đối diện cầu thang. Trên tầng 3 của ngôi nhà gồm có sân thượng rộng. Phòng thờ được cung cấp đầy đủ ánh sáng, là nơi gia đình thể hiện lòng thành kính với tổ tiên. Khu vực phòng giặt và sân phơi cũng được đặt trên tầng này.

Mặt bằng công năng mẫu nhà 1
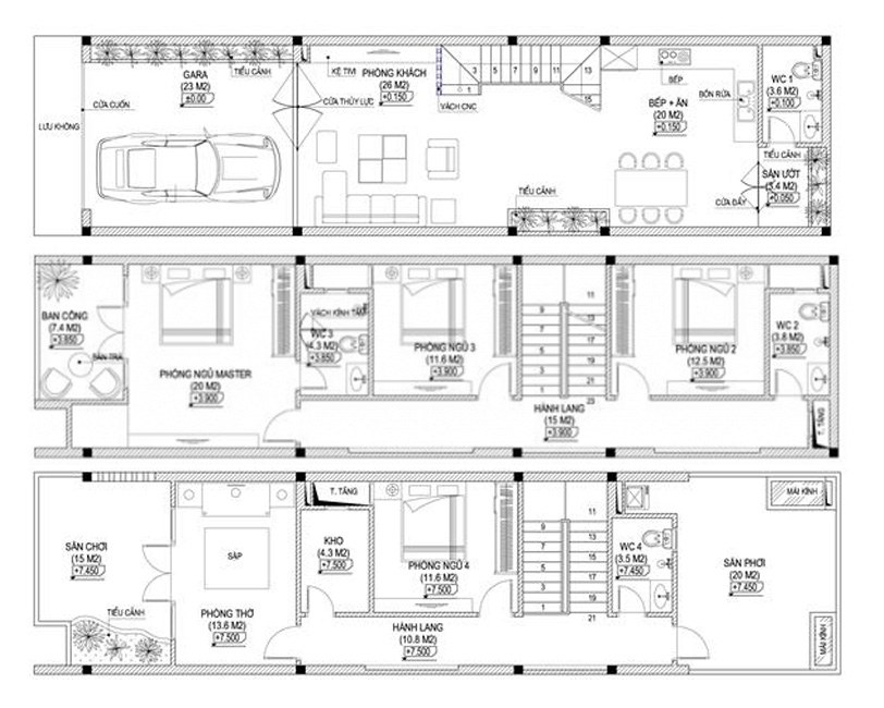
Mẫu 2: Nhà ống 3 tầng 3x15m mái bằng hiện đại không gian xanh
Với mặt tiền ngang 3m dài 15m, thiết kế nhà ống 3 tầng 3x15m này có phong cách hiện đại phá cách, bố cục tạo khối mới mẻ. Khối đua ở tầng 2 theo khối hình hộp được thiết kế đua rộng hơn so với mặt tiền tầng 1 và tầng 3, tạo nên điểm nhấn độc đáo. Đặc biệt, hệ cửa chớp nhôm uốn họa tiết ở mặt tiền đem lại nét đẹp thẩm mĩ độc đáo có một không hai cho công trình. Ngoài ra, trần của các tầng được xử lý ốp gỗ kết hợp với đèn led âm trần, đảm bảo cung cấp ánh sáng về đêm, thuận tiện cho việc sử dụng. Bên cạnh đó, các ban công đều được kết hợp với ban công trồng tiểu cảnh xanh, có bồn hoa tạo nên cảm quan ấn tượng cho mẫu nhà ống hiện đại.

Mẫu nhà ống hiện đại 3 tầng với hình khối vuông vắn
Mặt bằng công năng của mẫu nhà này được bố trí như sau. Tầng 1 dành riêng cho không gian sinh hoạt chung. Gara ô tô được thiết kế phía trước, đảm bảo sự di chuyển thuận tiện nhất. Gara được ngăn cách với phòng khách phía trong bằng cửa thủy lực tự động mở trượt, đảm bảo ngăn mùi xăng xe và khói bụi. Tiếp đến các không gian chức năng: phòng khách ở vị trí trung tâm, gần với gara. Cầu thang thông tầng đặt ở giữa ngăn phòng khách và phòng bếp phía trong. Nhà vệ sinh chung được đặt ở góc trong cùng của ngôi nhà, có khoảng sân ướt để vệ sinh khi cần thiết.
Tầng 2 bố trí 3 phòng ngủ. Phòng ngủ master có diện tích rộng, có nhà vệ sinh khép kín, hướng thẳng ra ban công để đón gió và ánh sáng. Phòng ngủ của hai con được thiết kế cạnh nhau, ngăn cách qua sảnh thang thông tầng. Nhà vệ sinh chung của tầng 2 ở cuối hành lang gần phòng ngủ số 2.
Tầng 3 bài trí đơn giản hơn với sân phơi có diện tích rộng. Tiếp giáp với sân phơi là phòng thờ rộng rãi. Một phòng ngủ nhỏ dự phòng dành cho khách ở lại qua đêm. Một kho nhỏ chứa đồ thờ được bố trí giữa phòng ngủ và phòng thờ. Bên kia cầu thang là khu vực sân phơi, bố trí máy giặt và hệ thống giàn phơi ở ngoài sân, được bao be bằng mái tum. Nhà vệ sinh chung cạnh cầu thang, gần cửa ra vào sân phơi.

Mặt bằng công năng mẫu nhà 2
Mẫu 3: Nhà ống 3 tầng 3x15m mái bằng kết hợp vừa ở vừa kinh doanh
Thiết kế nhà mặt tiền hẹp cần chú trọng đến tính thẩm mỹ của mặt tiền, nhất là với những ngôi nhà kết hợp kinh doanh thì càng phải quan tâm. Mẫu thiết kế nhà ống 3 tầng 3x15m gây ấn tượng khi sử dụng hài hòa các yếu tố ánh sáng, vật liệu kính tạo nên một tổng thể mang vẻ đẹp hiện đại, làm hoàn thiện thêm không gian kiến trúc ngoại thất. Những cây xanh trang trí được bố trí thông minh ở mỗi tầng tạo thành những điểm nhấn sống động, mang đến nét đẹp trang nhã và sang trọng cho ngôi nhà.

Phối cảnh kiến trúc nhà ống hiện đại đáp ứng yêu cầu của gia chủ
Về mặt bằng, công năng, tầng 1 ngôi nhà được tận dụng để kinh doanh mở salon tóc. Vì thế cả diện tích tầng 1 dành trọn cho khu vực kinh doanh này. Cuối nhà được bố trí thêm nhà vệ sinh chung. Bên hồng là cầu thang lên tầng sinh hoạt chung. Tầng 2 được bố trí phòng khách và phòng bếp liên thông với nhau. Cầu thang đặt ở giữa, ngăn cách với khoảng giếng trời mát mẻ. Phòng ngủ được bố trí nhà vệ sinh riêng và có ban công thoáng mát. Tầng 3 gồm có 1 phòng ngủ, 1 phòng thờ và sân chơi. Nhìn chung cách bố trí mặt bằng khá hợp lý, phù hợp cho gia đình nhỏ, vừa phải.

Mặt bằng công năng mẫu nhà 3





